English
Español
SUON KOMA
Wish List
Regulations
Care and Protection
Newsletter & Annual Reports
Press & Media
Links
Home
Mission
DEI KOMA
Educational
The World and ME
The Children’s Club
TFC Sports Center
Outings
Play & Learn
Training & Workshops
Social Enterprise
Community
Volunteers
Events
How YOU can help
Contact Us
Photos Gallery
Video Gallery
1- NEWSLETTERS
NEWSLETTERS 2019
2- Newsletter February 2019
3- Newsletter March 2019
4- Newsletter - 5th APRIL 2019 -
5- Newsletter KNY 2019
NEWSLETTERS 2018
1- Newsletter JANUARY 2018
2- Newsletter FEBRUARY 2018
3- Newsletter ENDING SCHOOL
4- Newsletter WORKSHOPS & SEMINARS in SEP and OCT 2018
5- TFC & MoSAVY
6- TFC & SPOTLIGHT
7- Newsletter BACK To SCHOOL!
NEWSLETTERS 2017
1- Newsletter FIRST TERM 2017
2- Newsletter KHMER NEW YEAR
3- Newsletter Work Field & Assessments
4- Newsletter MOTHER & Three CHILDREN
5- Newsletter COSTA del SOL
6- Newsletter Back to the SCHOOL
7- Newsletter POPURRI
8- Newsletter Cook Book & Bags 2017
NEWSLETTERS 2016
1- Newsletter DEI KOMA Opening Ceremony
2- Newsletter Khmer New Year
3-Newsletter DIAMOND PROGRAM
4-Newsletter HOME CARE Program
5-Newsletter SEWING WORKSHOP Program
6- Newsletter CALL To ACTION
7-Newsletter ACADEMIC YEAR 2016-17
NEWSLETTERS 2015
1-Dei Koma Newsletter - 2015.pdf
2-Dei Koma February 2015.pdf
3-Newsletter DEI KOMA - April 2015.pdf
4-Newsletter DEI KOMA - May 2015.pdf
5-Newsletter DEI KOMA - June 2015.pdf
6-Newsletter DEI KOMA - August 2015.pdf
7- Newsletter DEI KOMA - Septembre 2015.pdf
NEWSLETTERS 2014
1- DIAMOND AGE PROGRAM
2- GOOD TRIP - GOOD LUCK
3- UNSUNG HEROES OF COMPASSION TRAVEL USA
4- Newsletter USA & CANADA
5- TFC & INTERNET & CHILD PROTECTION POLICIES
6- Newsletter Denise_Curves_Gym.pdf
7- Newsletter Dry Season - April 2014.pdf
8- Newsletter Travel Spain.pdf
9- DIARY RAiNy Season 2014.pdf
NEWSLETTERS 2014 - THE CHILDREN'S LAND PROJECT
1- NEWSLATTER THE CHILDREN'S LAND - MARCH 2014
2- THE CHILDREN´S LAND (Dei Koma) - June 2014.pdf
3- DEI KOMA - FOUNDATION GIRLS HOME - June 2014.pdf
4- DEI KOMA - THE SCHOOL - July 2014.pdf
5-DEI KOMA - FOUR BUILDINGS - August 2014.pdf
6-DEI KOMA - SIX BUILDING - November 2014.pdf
NEWSLETTERS 2013
1- NEWSLETTER DRY SEASON 2013.pdf
2- THE CHILDREN'S LAND March 2013.pdf
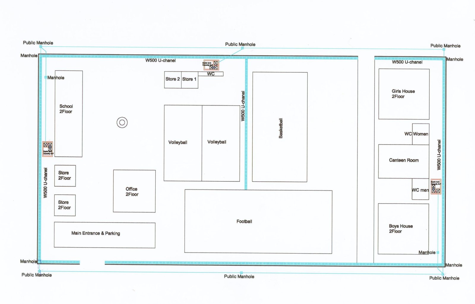
2.1- Masterplan.jpg
2.2- U Channel Design.jpg
3- THE CHILDREN'S LAND May 2013.pdf
3.1- Monthly Payment.pdf
3.2- ANZ Bank Statment.pdf
3.3- Building the fend and filling the land.pdf
3.4- Putting Concret Pipe and filling the land.pdf
3.5- Complete the Wall.pdf
3.6- U Channel & Budget.pdf
4- NEWSLETTER SUMMER 2013.pdf
5- FBI SCHOOL - FBIS Especial Information.pdf
6 - NEWSLETTER RAINY SEASON 2013.pdf
7- THE CHILDREN'S LAND NOV-2013.pdf
7.1- Bank Statement .pdf
7.2- Monthly Payment Land.pdf
7.3- Design School NO TERRACE.jpg
7.4- Design School TERRACE.jpg
7.5- Design COMPASSION Building .pdf
7.6- Design COMMUNICATION Building.jpg
8- NEWSLETTER CHRISTMAS 2013.pdf
9- THE CHILDREN'S LAND DEC-2013
NEWSLETTERS 2012
1- NEWSLETTER DRY SEASON 2012.pdf
2- NEWSLETTER SUMMER 2012.pdf
3- NEWSLETTER RAINING SEASON 2012.pdf
3.1- Globalteer Certificate.jpg
3.2- Certificate English.png
4- NEWSLETTER CHRISTMAS 2012.pdf
4.1- Children's Land Project_Design.pdf
NEWSLETTERS 2011
1- Newsletter SPRING 2011.pdf
3- Newsletter AUTUMN 2011.pdf
4- Newsletter WINTER 2011.pdf
2- ANNUAL DEVELOPMENT REVIEW
Annual Development Review 2013_Eng-17-03-2014.pdf
Annual Development Review 2012.pdf
Annual Development Review 2011.pdf
3- ANNUAL FINANCIAL REPORT
Annual Expenses Budget 2019 (signed)-Ext
Balance Sheet Year 2018
Profit & Loss 2018 - External
Annual Financial Report 2017.pdf
Annual Financial Report 2016.pdf
Annual Financial Report 2015.pdf
Annual Financial Report 2014.pdf
4- EXPENSES BUDGET Together For Cambodia
Budget Expenses Plan 2018 - External.pdf
Budget Expenses Plan 2017 - External.pdf
Expenses Budget 2016 Together For Cambodia.pdf